Oportunidad única para promotores que buscan agilidad y rentabilidad. Este terreno urbano, ubicado en una zona de fuerte crecimiento y a solo 500 metros del centro de Vic, se vende con proyecto y licencia de obras ya visados, lo que permite iniciar la edificación de manera inmediata y comenzar la comercialización sobre plano desde el primer día.
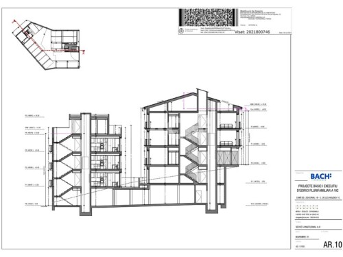
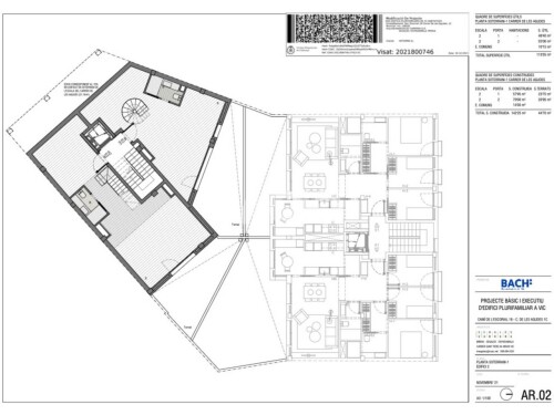
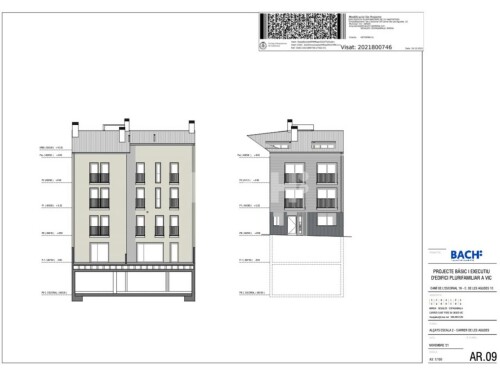
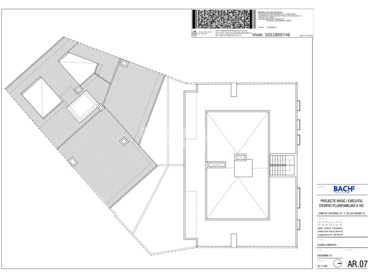
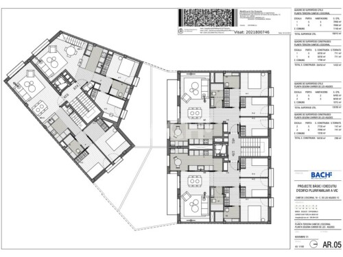
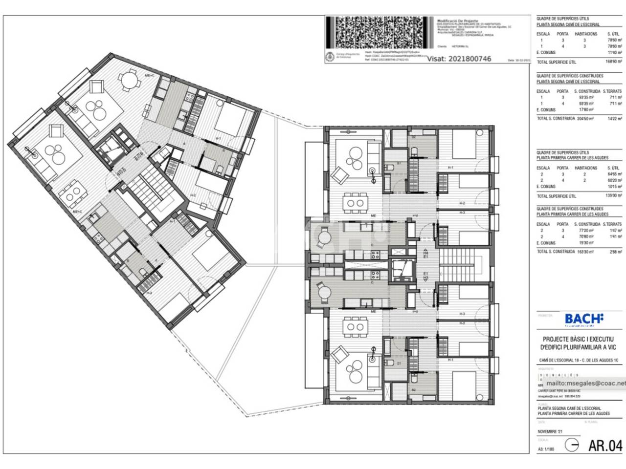
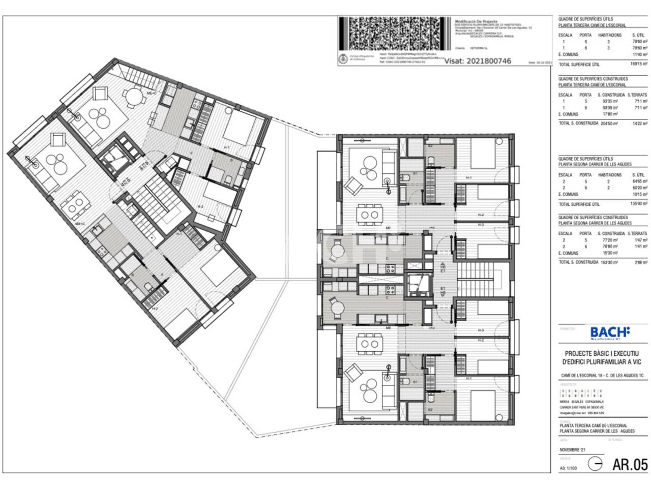
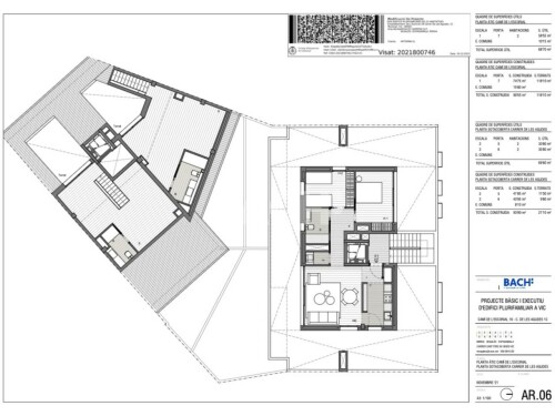
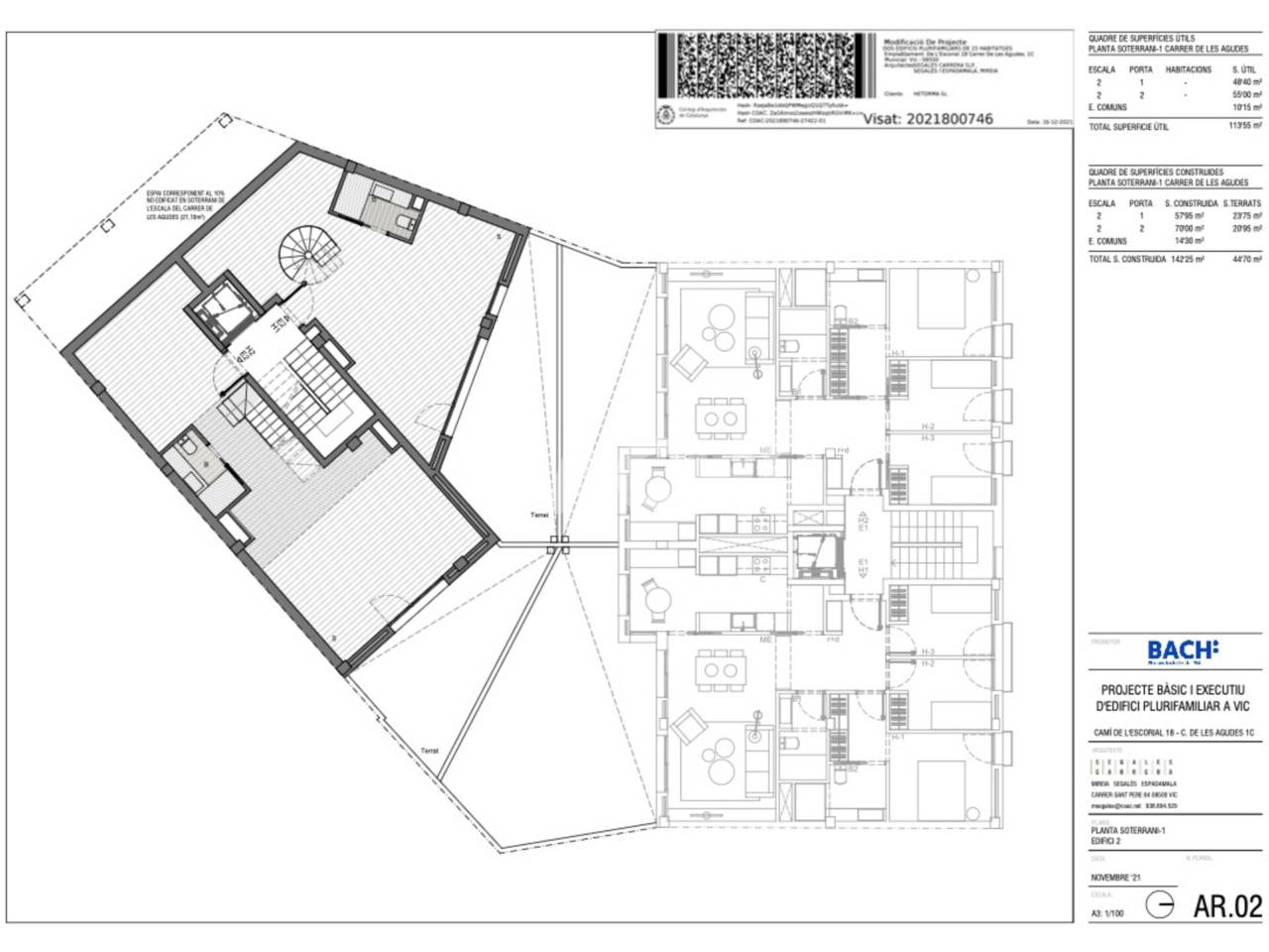
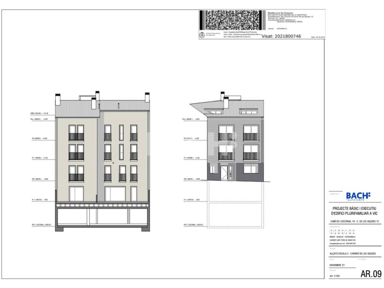
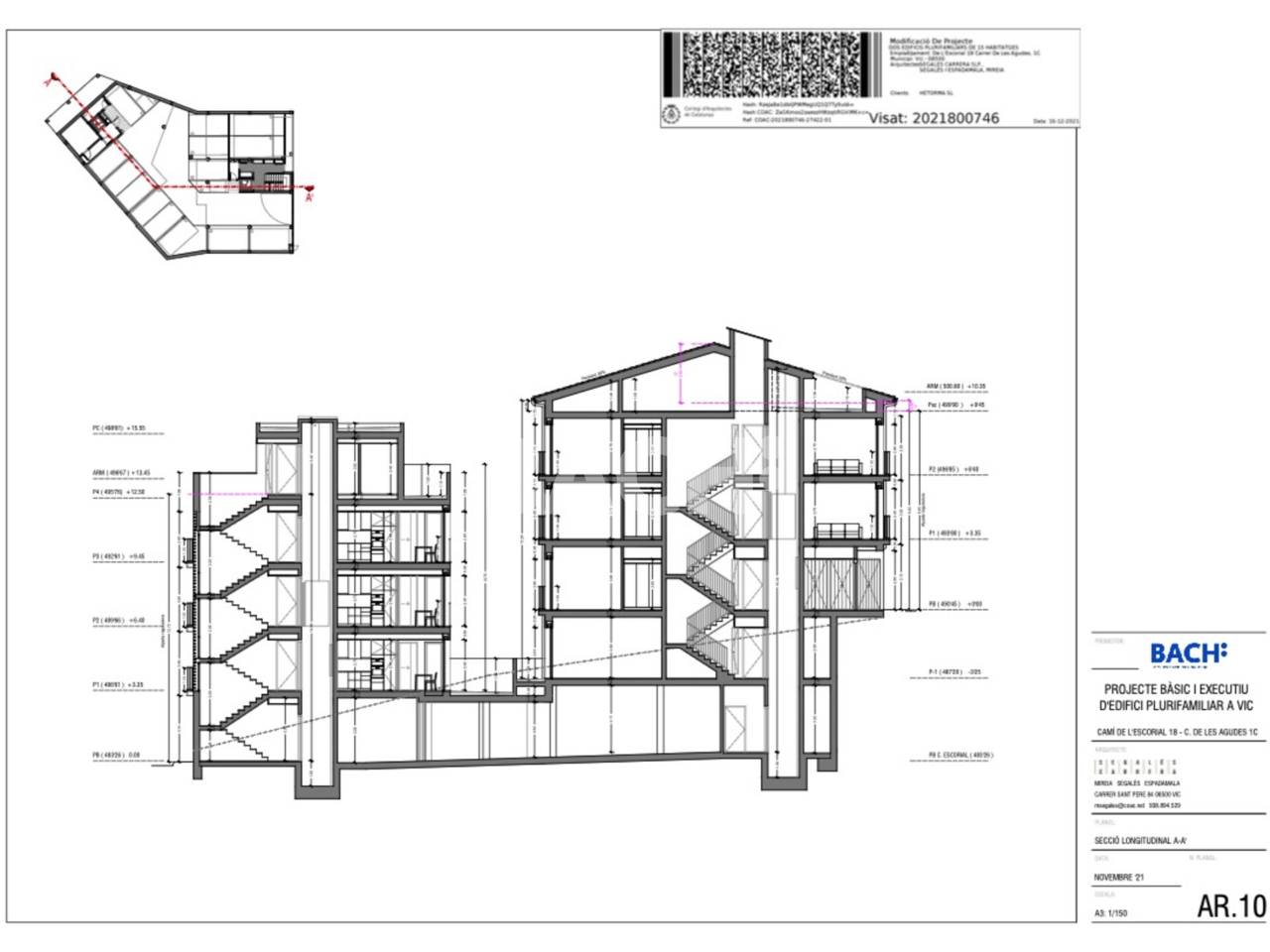
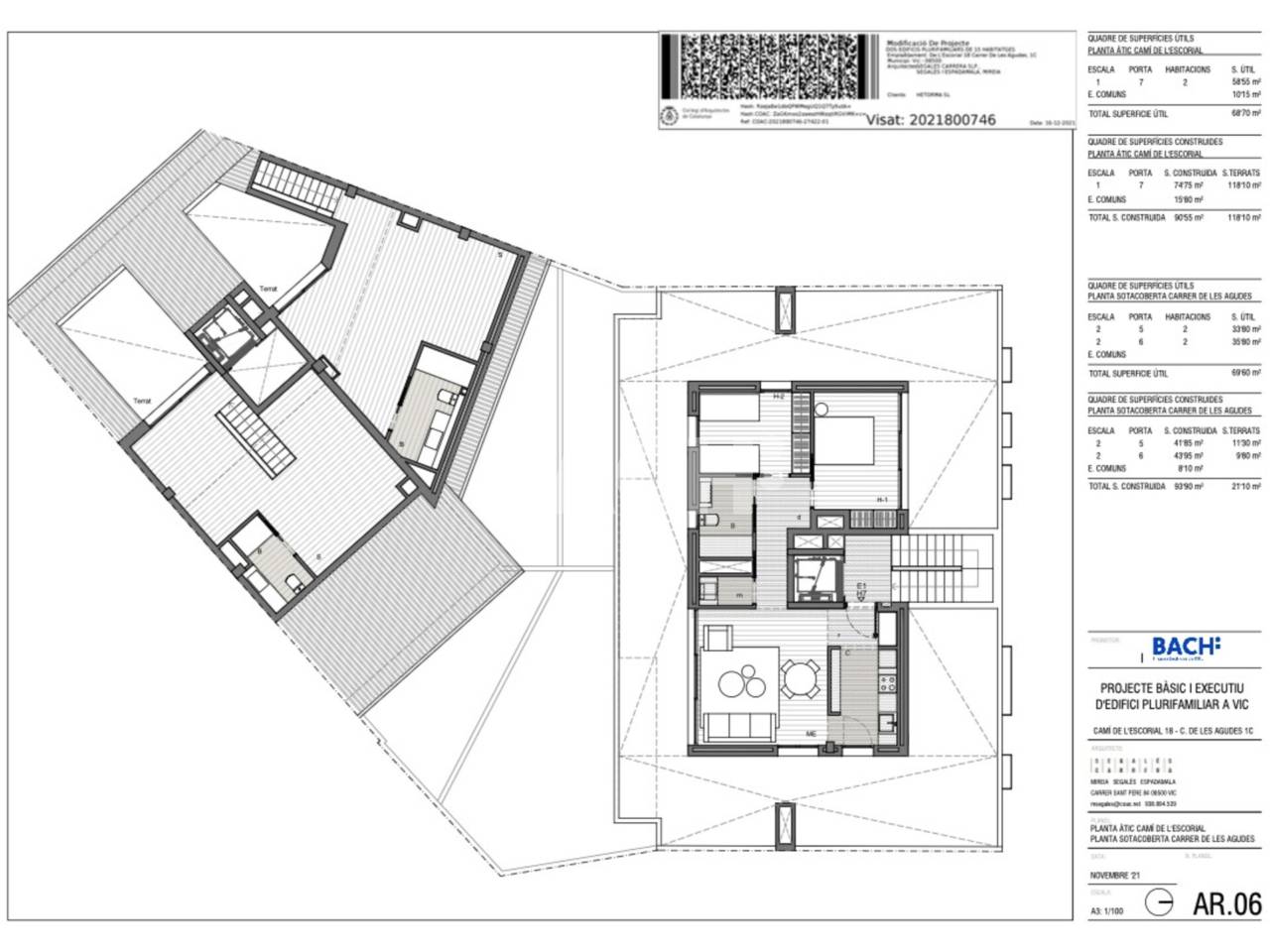
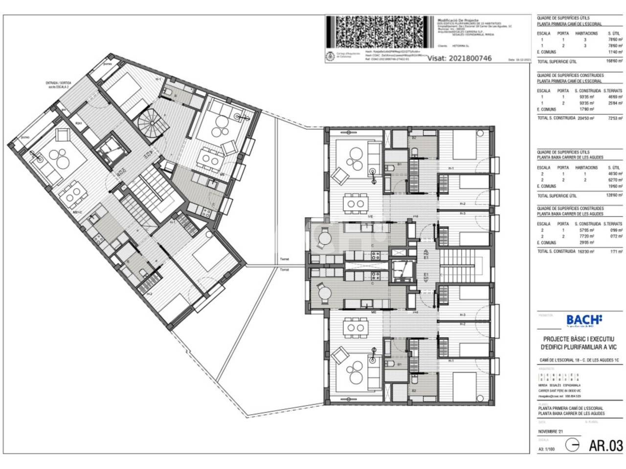
El proyecto aprobado contempla la construcción de 12 viviendas distribuidas en tipologías de 2 y 3 dormitorios, además de un exclusivo ático con una espectacular terraza de 120 m². Una propuesta atractiva para un público diverso y exigente, con una distribución pensada para combinar confort, funcionalidad y calidad de acabados.
El precio de venta incluye los siguientes gastos ya cubiertos:
Licencia de obras y tasas municipales.
Proyecto técnico visado.
Obras de rebaje del terreno documentadas.
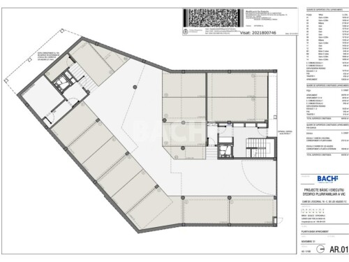
Inicio de la estructura de hormigón (ejecutada aproximadamente en un 20%).
Estas condiciones permiten ahorrar tiempo y costes iniciales, facilitando una ejecución ágil y eficiente del proyecto. Una propuesta ideal para promotores que quieren empezar a construir y vender sin esperar.
¿Te interesa impulsar un proyecto en Vic con todos los permisos listos? Contáctanos para conocer todos los detalles. Estamos a tu disposición para ayudarte a hacer realidad tu inversión.
Utilizamos cookies propias y de terceros para ofrecer nuestros servicios y recoger información estadística. Puede aceptar todas las cookies pulsando el botón “Aceptar” o configurarlas o rechazar su uso clicando a la
Política de cookies
Son aquellas que permiten al usuario la navegación a través de una página web, plataforma o aplicación y la utilización de las diferentes opciones o servicios que en ella existan.
finquesbach.com
avis-cookies
1 año
Cookie necesaria para la utilización de las opciones y servicios del sitio web
finquesbach.com
PHPSESSID
12 horas
Cookies generada por las aplicaciones basadas en el lenguaje PHP. Se trata de un identificador de propósito general usado para mantener las variables de sesión de usuario. Normalmente es un número generado al azar, cómo se utiliza puede ser específica para el sitio, pero un buen ejemplo es el mantenimiento de una sesión iniciada en el estado de un usuario entre las páginas.
finquesbach.com
XSRF-TOKEN
12 horas
Es una cookie encriptada que sirve para controlar que todos los envíos de formularios son realizados por el usuario actualmente en sesión, evitando ataques CSRF (Cross-Site Request Forgery).
Son aquellas que permiten al responsable de las mismas el seguimiento y análisis del comportamiento de los usuarios de los sitios web a los que están vinculadas.
finquesbach.com
_ga
2 años
La cookie _ga, instalada por Google Analytics, calcula los datos de visitantes, sesiones y campañas y también realiza un seguimiento del uso del sitio para el informe analítico del sitio. La cookie almacena información de forma anónima y asigna un número generado aleatoriamente para reconocer a visitantes únicos.
finquesbach.com
_ga_*
2 años
Google Analytics configura esta cookie para almacenar y contar las visitas a la página.
youtube.com
CONSENT
2 años
YouTube establece esta cookie mediante vídeos de youtube incrustados y registra datos estadísticos anónimos.
habitatsoft.com
AMCV
2 años
Utilizadas únicamente para cuantificar el número de usuarios que acceden a este portal, facilitando la realización de mediciones y análisis estadísticas que permitan mejorar la oferta de productos y servicios del sitio Web y Habitatsoft (http://www.habitatsoft.com/) como nuestro proveedor de servicios. Se tratan datos agregados sin identificar a los usuarios. Las cookies de análisis de audiencia y publicitarias se llevan a cabo mediante las cookies de terceros de Adobe. Posteriormente, esta información se envía a los servidores de Pisos.com
Son aquellas que permiten la gestión, de la forma más eficaz posible, de los espacios publicitarios que, en su caso, el editor haya incluido en una página web, aplicación o plataforma desde la que presta el servicio solicitado en base a criterios como el contenido editado o la frecuencia en la que se muestran los anuncios.
youtube.com
yt-remote-connected-devices
nunca
YouTube establece esta cookie para almacenar las preferencias de vídeo del usuario que utiliza el vídeo de YouTube incrustado.
youtube.com
yt-remote-device-id
nunca
YouTube establece esta cookie para almacenar las preferencias de vídeo del usuario que utiliza el vídeo de YouTube incrustado.
youtube.com
VISITOR_INFO1_LIVE
5 meses
Una cookie establecida por YouTube para medir el ancho de banda que determina si el usuario obtiene la interfaz del reproductor nueva o antigua.
youtube.com
YSC
sesión
La cookie YSC la configura Youtube y se utiliza para realizar un seguimiento de las visualizaciones de los vídeos incrustados en las páginas de Youtube.
Utilizamos cookies propias y de terceros para ofrecer nuestros servicios y recoger información estadística. Puede aceptar todas las cookies pulsando el botón “Aceptar” o configurarlas o rechazar su uso clicando a la
Política de cookies